Direkt zum Inhalt

UVE Stadtentwicklung Oberes Hausfeld

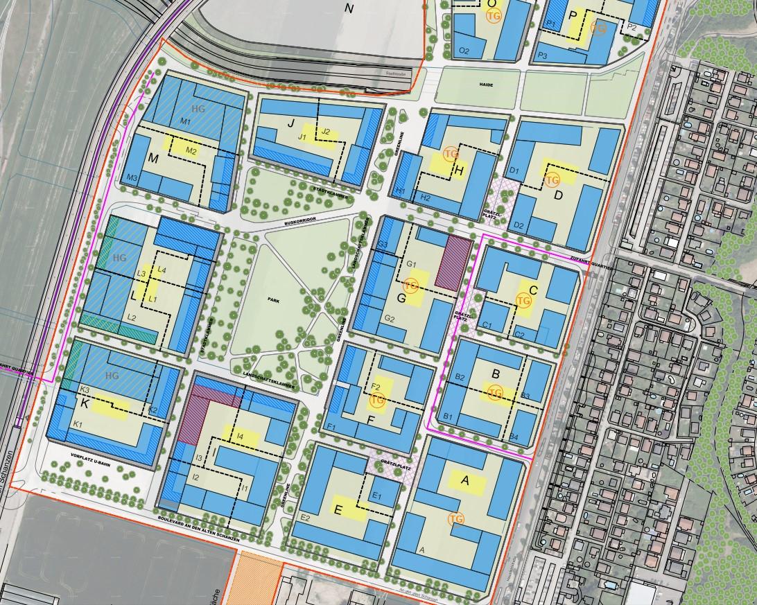
Das Obere Hausfeld ist ein Schlüsselgebiet der Stadtentwicklung im Norden Wiens. In hochrangiger Lage an der U-Bahn soll ein neuer Stadtteil entstehen, welcher zunächst in einem Kooperativen Verfahren im Rahmen eines städtebaulichen Entwurfes entwickelt wurde. Rosinak & Partner ZT GmbH hat für das Gebiet zwischen Hausfeldstraße, An den Alten Schanzen und der Bahntrasse der U-Bahnlinie U2 zwischen der Station Hausfeldstraße und der geplanten Station An den alten Schanzen das Einreichverfahren der Umweltverträglichkeitserklärung fachlich begleitet. Wir waren zuständig für folgende Leistungen

  • UVE-Koordination
  • Fachgebiet Schall
  • Fachgebiet Luft 
  • Fachgebiet Klima
  • Fachgebiet Licht & Beschattung
  • Verkehrsuntersuchung
Zeitraum
2020-2023
Auftraggeber
ARGE Oberes Hausfeld / KALLCO DEVELOPMENT GMBH & CO KG
Arbeitsfeld
Mikro Klima